Die Schlitzrinne Ferrofix aus Edelstahl mit einer Materialstärke von 2,0 mm (im Tauchbad gebeizt) ist mit geschliffenen Sichtstegen, Längs- und Quergefälle, Standfüßen zur Höhennivellierung sowie mit Auslaufstutzten aus Edelstahl ausgestattet. Das Rinnenprofil ist passend für Abdichtung im Verbund und hat einen umlaufenden Kleberand (15 mm tief und 50 mm nach außen abgekantet) mit verschweißten Gehrungen. Der Klebeflansch ist geeignet zur Anbindung von Abdichtungen im Verbund, gemäß DIN 18534, für alle Wassereinwirkungsklassen.
Ausführung
Abdichtung am Aufsatzstück: Klebeflansch (geeignet für Feuchtigkeitssperren)
Wassereinwirkungsklasse nach DIN 18534-1 (bis einschließlich): W3-I
Position Sinkkasten: mittig
Allgemeine Merkmale
Material: Edelstahl 1.4301 (V2A)
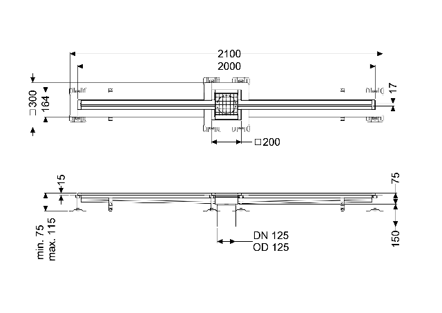
Nennweite (DN): 125
Außendurchmesser (DA): 125 mm
Klebeflansch Höhe: 15 mm
Abmessungen
Länge: 2000 mm
Breite: 17 mm
Höhe: 75 mm
Abdeckungsmerkmale
Abdeckungsart: Gitterrost
Abdeckung Farbe: silber
Abdeckung Breite: 200 mm
Abdeckung Länge: 200 mm
Verriegelung: eingelegt
Belastungsklasse: L 15 (EN 1253-1)
Rutschhemmklasse: R12 nach DIN 51130; C nach DIN 51097
Schlitzbreite: 17 mm