Die steckerfertige Kleinhebeanlage Minilift M WC ist geeignet für die Abwasserentsorgung von häuslichem Schwarzwasser, ideal zum Anschluss von WC, Bidet, Dusche und Waschbecken.
Die überflutbare Pumpe mit Schwimmerschalter kann werkzeuglos entnommen werden. Durch den verstellbaren Schwimmer ist das Nutzvolumen einstellbar und kann somit für alle Bedarfe optimal angepasst werden.
Mittels des wechselbaren WC Anschlusses kann eine Toilette frontal oder seitlich am Behälter angeschlossen werden. Hierdurch sowie durch die extrem kompakte Bauweise ist die Anlage ideal für alle Einsatzorte, frei aufgestellt oder zum Verbau in einer Vorwand. Durch die tiefliegenden seitlichen Zuläufen in DN40 / DN50 eignet sie sich optimal für den Anschluss flacher Duschtassen. Ein senkrechter Zulauf in DN40 kann bauseitig hergestellt werden. Durch das einfache und werkzeuglose Handling ist eine schnelle Installation und flexible Nutzung gewährleistet.
- Heißwasserbeständig
- Druckseitiger Rückflussverhinderer werksseitig integriert
- Leistungsstarke Pumpe mit Schneidwerk für höchste Betriebssicherheit
- Werkzeuglose Wartung
Ausführung
Anlagenart: Einzelanlage
Rückflussverhinderer: integriert
Druckabgang: senkrecht
Allgemeine Merkmale
Farbe: weiß
Norm: EN 12050-3
Abwasserart: fäkalienhaltig
Einbausituation: freie Aufstellung
Auslieferungszustand: steckerfertig
Kabellänge: 1,4 m
Abmessungen
Gewicht netto: 7,65 kg
Gewicht brutto: 8,65 kg
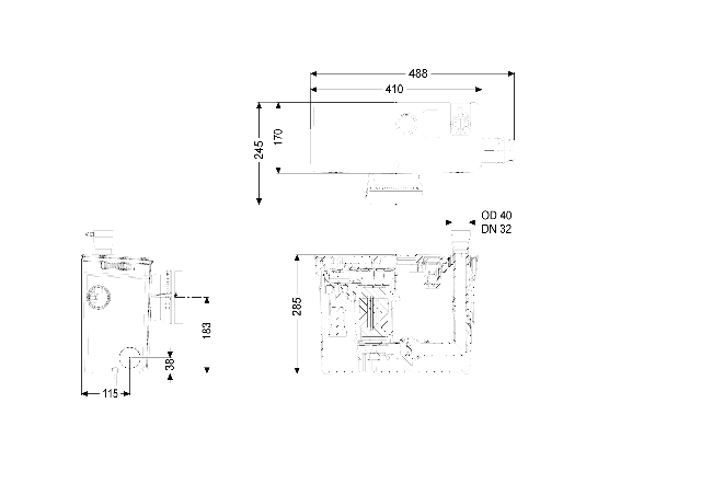
Länge: 410 mm
Breite: 170 mm
Höhe: 285 mm
Verpackungsmaß Länge: 455 mm
Verpackungsmaß Breite: 227 mm
Verpackungsmaß Höhe: 387 mm
Behälter/Grundkörper
Druckabgang (DN): 32
Druckabgang (DA): 40 mm
Abstand Rohrsohle Auslauf zu Behälterboden: 285 mm
Abstand Rohrsohle Zulauf zu Behälterboden: 183 mm
Behältervolumen: 11,75 l
Fördereinrichtung
Pumpe: STZ 750-S3
Anzahl Pumpen: 1
Anschlusstyp: Schuko 2-polig
Schutzklasse: I
Schutzart Pumpe: IP 44
Temperaturüberwachung: integriert
Förderguttemperatur (dauerhaft) max.: 40 °C
Heißwasserbeständigkeit kurzzeitig (2 Min.): 80 °C
Förderleistung max.: 9,8 m³/h
Förderhöhe max.: 9 m
Drehzahl: 2700 U/min
Leistung P1: 0,75 kW
Leistung P2: 0,46 kW
Betriebsart: S3 - 15 %
Typ Anschlussleitung Pumpe: H05VV-F 3G 0,75 mm²
Laufrad Typ: Schneidwerk
Länge Netzanschlussleitung Pumpe: 1,4 m
Nennstrom: 3,5 A
Steuerung
Motorschutz Schalter: ja
Instrument Niveauerfassung: Schwimmerschalter
Art Niveauerfassung: mechanisch
Netzfrequenz: 50 Hz
Betriebsspannung: 230 V
Anschlusstyp: Schuko 2-polig